產品介紹

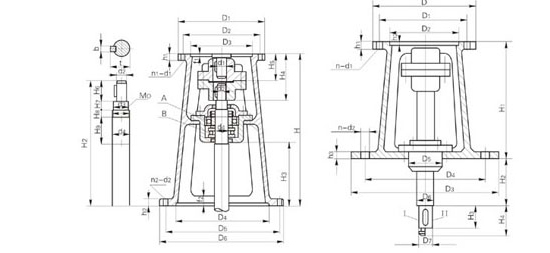
JⅡ型單支點機架主要參數及尺寸
機架型號
減速機型號
D1
D2
D3(H8)
D4(H9)
D5
D6
n1-d1
n2-d2
H
H2
H3
H4
H5
H6
H8
H8
H9
JⅡ2
B2
260
230
200
295
350
392
6-13.5
4-26
568
478
301
159
89
74
20
17
70
JⅡ3
B3
340
310
270
345
400
442
6-13.5
4-26
675
575
358
178
101
81
37
20
82
JⅡ4
B4
400
360
320(316)
435
500
548
8-16
8-30
736
613
384
215
123
92
25
28
120
JⅡ5
B5
490
450
400
440
550
600
12-18
12-22
835
685
363
280
150
130
44
40
142
JⅡ6
B6
580
520
460(455)
500
550
600
12-22
12-22
928
739
380
350
187
163
46
40
156
機架型號
減速機型號
d1
d2
d3
M0
d4
(k6)
b
t
f1
f2
h1
h2
JⅡ2
B2
45
45
43
M50×2
50
14
48.5
6
5
20
12
JⅡ3
B3
55
55
63
M65×2
65
16
59
6
5
20
24
JⅡ4
B4
70
70
72
M75×2
75
20
74.5
7
5
22
26
JⅡ5
B5
90
90
95
M100×2
100
25
95
8
7
26
28
JⅡ6
B6
100
100
105
M110×2
110
28
106
10
7
28
30
TJA型單支點機架主要參數及尺寸
機架型號
減速機型號
輸入端接口
輸出端接口
D5
D6
D7
H1
H2
H3
H4
D
D1
D2(H9)
h1
h2
n-d1
D3
D4
n-d2
h3
TJA0
B0
190
160
140
16
5
4-12
250
210
3-12
16
115
45
30
260
200
34
70
TJA1
B1
230
200
170
16
5
6-12
290
260
4-12
16
115
45
35
310
200
57
100
TJA2
B2
260
230
200
20
6
6-12
345
300
3-18
20
115
50
45
350
200
57
100
TJA3
B3
340
310
270
22
6
6-13.5
460
400
4-20
22
160
60
55
440
250
77
100
TJA4
B4
400
260
320
(316)
22
7
8-15
580
530
6-20
22
160
75
70
521
250
87
130
TJA5
B5
490
450
400
25
7
12-18
600
550
8-22
28
240
100
90
540
300
107
170
TJA6
B6
580
520
320
(316)
28
10
12-22
600
560
12-22
30
250
110
100
624
350
100
200
TJA7
B7
650
590
520
30
12
12-22
700
650
12-22
30
275
120
110
724
400
142
200
TJA8
B8
880
800
680
30
12
12-37
880
810
20-27
37
310
140
130
818
450
202
225
注:圖中所注“H2”僅與本樣本BLD系列件速機相配,如選用其他型號或其他廠家減速機,“H2”需另行計算。
2、Ⅰ型為夾殼式聯軸器聯接
3、Ⅱ型為JA型聯軸器聯接
4、如用戶對輸出軸長度有特殊要求,請在訂貨時說明

JⅡ型單支點機架主要參數及尺寸
| 機架型號 | 減速機型號 | D1 | D2 | D3(H8) | D4(H9) | D5 | D6 | n1-d1 | n2-d2 | H | H2 | H3 | H4 | H5 | H6 | H8 | H8 | H9 |
| JⅡ2 | B2 | 260 | 230 | 200 | 295 | 350 | 392 | 6-13.5 | 4-26 | 568 | 478 | 301 | 159 | 89 | 74 | 20 | 17 | 70 |
| JⅡ3 | B3 | 340 | 310 | 270 | 345 | 400 | 442 | 6-13.5 | 4-26 | 675 | 575 | 358 | 178 | 101 | 81 | 37 | 20 | 82 |
| JⅡ4 | B4 | 400 | 360 | 320(316) | 435 | 500 | 548 | 8-16 | 8-30 | 736 | 613 | 384 | 215 | 123 | 92 | 25 | 28 | 120 |
| JⅡ5 | B5 | 490 | 450 | 400 | 440 | 550 | 600 | 12-18 | 12-22 | 835 | 685 | 363 | 280 | 150 | 130 | 44 | 40 | 142 |
| JⅡ6 | B6 | 580 | 520 | 460(455) | 500 | 550 | 600 | 12-22 | 12-22 | 928 | 739 | 380 | 350 | 187 | 163 | 46 | 40 | 156 |
| 機架型號 | 減速機型號 | d1 | d2 | d3 | M0 | d4 (k6) |
b | t | f1 | f2 | h1 | h2 |
| JⅡ2 | B2 | 45 | 45 | 43 | M50×2 | 50 | 14 | 48.5 | 6 | 5 | 20 | 12 |
| JⅡ3 | B3 | 55 | 55 | 63 | M65×2 | 65 | 16 | 59 | 6 | 5 | 20 | 24 |
| JⅡ4 | B4 | 70 | 70 | 72 | M75×2 | 75 | 20 | 74.5 | 7 | 5 | 22 | 26 |
| JⅡ5 | B5 | 90 | 90 | 95 | M100×2 | 100 | 25 | 95 | 8 | 7 | 26 | 28 |
| JⅡ6 | B6 | 100 | 100 | 105 | M110×2 | 110 | 28 | 106 | 10 | 7 | 28 | 30 |
TJA型單支點機架主要參數及尺寸
| 機架型號 | 減速機型號 | 輸入端接口 | 輸出端接口 | D5 | D6 | D7 | H1 | H2 | H3 | H4 | ||||||||
| D | D1 | D2(H9) | h1 | h2 | n-d1 | D3 | D4 | n-d2 | h3 | |||||||||
| TJA0 | B0 | 190 | 160 | 140 | 16 | 5 | 4-12 | 250 | 210 | 3-12 | 16 | 115 | 45 | 30 | 260 | 200 | 34 | 70 |
| TJA1 | B1 | 230 | 200 | 170 | 16 | 5 | 6-12 | 290 | 260 | 4-12 | 16 | 115 | 45 | 35 | 310 | 200 | 57 | 100 |
| TJA2 | B2 | 260 | 230 | 200 | 20 | 6 | 6-12 | 345 | 300 | 3-18 | 20 | 115 | 50 | 45 | 350 | 200 | 57 | 100 |
| TJA3 | B3 | 340 | 310 | 270 | 22 | 6 | 6-13.5 | 460 | 400 | 4-20 | 22 | 160 | 60 | 55 | 440 | 250 | 77 | 100 |
| TJA4 | B4 | 400 | 260 | 320 (316) |
22 | 7 | 8-15 | 580 | 530 | 6-20 | 22 | 160 | 75 | 70 | 521 | 250 | 87 | 130 |
| TJA5 | B5 | 490 | 450 | 400 | 25 | 7 | 12-18 | 600 | 550 | 8-22 | 28 | 240 | 100 | 90 | 540 | 300 | 107 | 170 |
| TJA6 | B6 | 580 | 520 | 320 (316) |
28 | 10 | 12-22 | 600 | 560 | 12-22 | 30 | 250 | 110 | 100 | 624 | 350 | 100 | 200 |
| TJA7 | B7 | 650 | 590 | 520 | 30 | 12 | 12-22 | 700 | 650 | 12-22 | 30 | 275 | 120 | 110 | 724 | 400 | 142 | 200 |
| TJA8 | B8 | 880 | 800 | 680 | 30 | 12 | 12-37 | 880 | 810 | 20-27 | 37 | 310 | 140 | 130 | 818 | 450 | 202 | 225 |
注:圖中所注“H2”僅與本樣本BLD系列件速機相配,如選用其他型號或其他廠家減速機,“H2”需另行計算。
2、Ⅰ型為夾殼式聯軸器聯接
3、Ⅱ型為JA型聯軸器聯接
4、如用戶對輸出軸長度有特殊要求,請在訂貨時說明

a>